Все строящиеся дома и готовые новостройки
Санкт-Петербурга и Ленобласти
Санкт-Петербург и ЛО

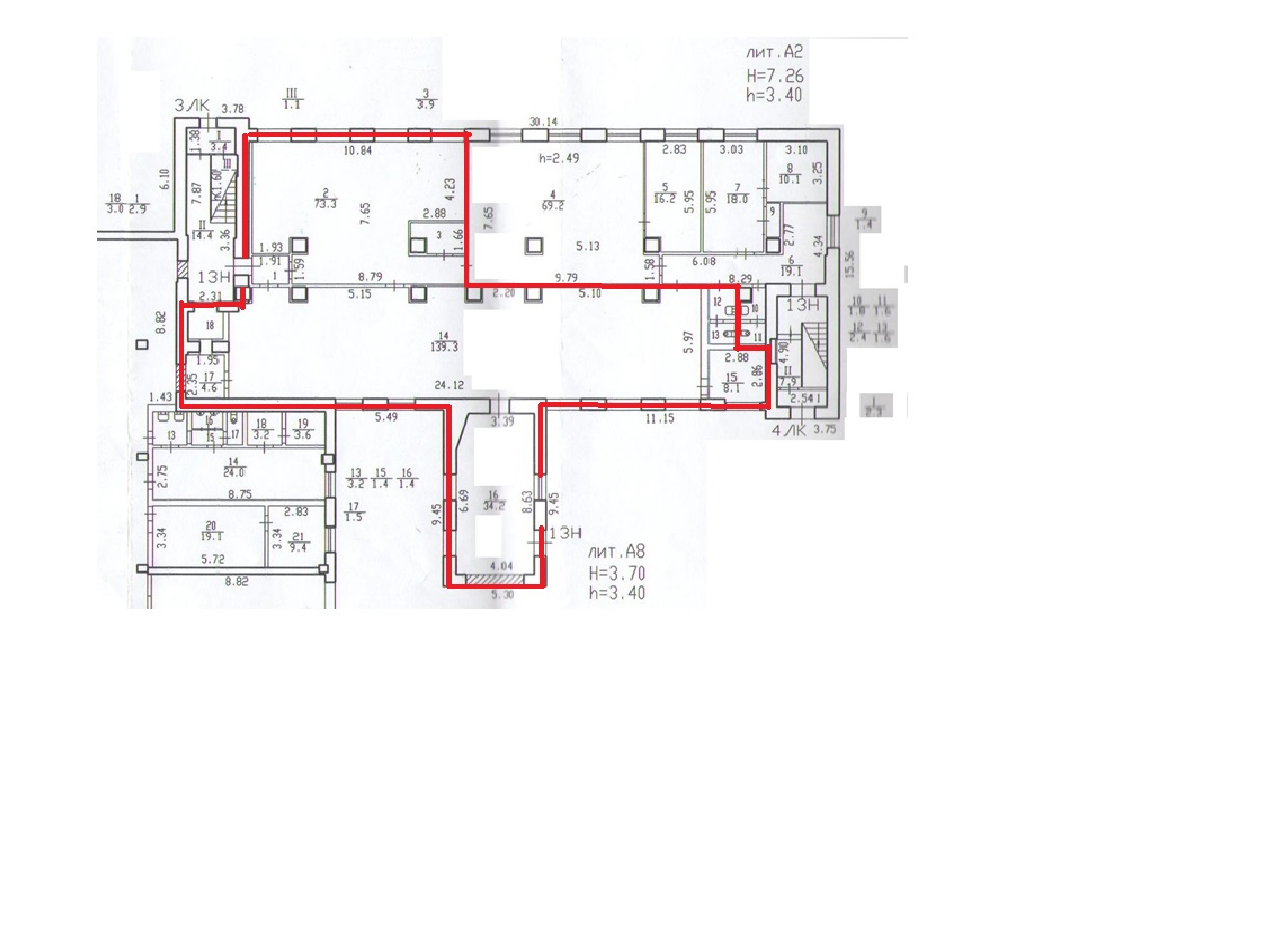
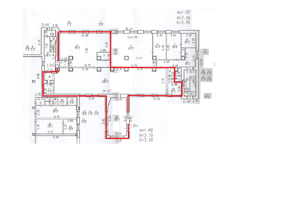
Помещение 273 м2, 1/2 этаж,
Южное, д. 37к1 литера а

300 630 руб./мес.

  • Санкт-Петербург г, Южное ш, д. 37к1 литера а

Основные характеристики

  • Этаж 1 этаж 2-этажного дома
  • Общая площадь 273.3 м²
  • Назначение помещения складское помещение

Дополнительная информация

  • Предоплата 100 %
  • Источник напрямую
  • Залог да
  • Ремонт да
  • Наличие телефона да
  • Наличие интернета да
  • Высота потолков, м 3.4

Инфраструктура

Описание

Складское / офисное помещение с отдельным входом, от собственника, общей площадью 273,3 м2. (отапливаемое, средняя температура 20 градусов (есть возможность уменьшить). Доступ – 24 часа. Различное назначение. Имеется пандус для разгрузки-погрузки. Удобные подъездные пути и транспортная доступность, наличие необходимых коммуникаций. Отличный подъезд, рядом пассажирская станция "Сортировочная", близость к КАД Этаж: 1 этаж, помещение 13Н комн. № 1, 2, 3, 12-18 Площадь помещения: 273,3 кв.м. Высота потолка: 3,40 (подвесной потолок) Пол: бетонный, плитка. Окна: стеклопакеты Электроснабжение: проведено в помещение, мощность до 15 кВт. Водоснабжение и канализация. Входная дверь и ворота в помещение: - двустворчатая металлическая дверь, размеры: высота 2,05 м. х ширина 1,20 м. - роллетные ворота, размеры: высота 2,75 м. х 1,79 м. Перепланировка помещения: возможна по согласованию. Пожарная сигнализация установлена. Вход в здание, в котором находится помещение, осуществляется следующими способами: - КПП со стороны Южного шоссе; - вход с Агатова переулка. К.у. оплачиваются отдельно [#8134245#]

Актуальные предложения

300 630 руб./мес. Помещение 273 м2, 1/2 этаж, Южное, д. 37к1 литера а
Позвоните мне