Все строящиеся дома и готовые новостройки
Санкт-Петербурга и Ленобласти
Санкт-Петербург и ЛО

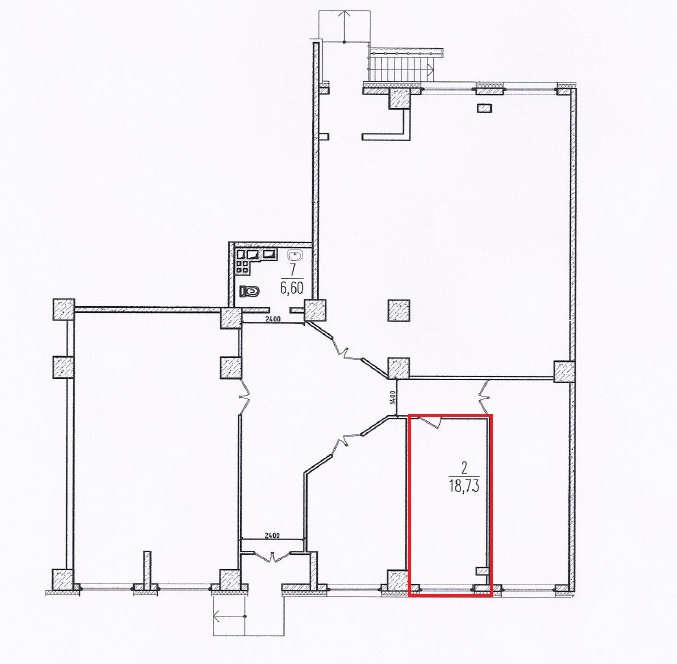
Помещение 19 м2, 1/25 этаж,
Лыжный, д. 2

46 825 руб./мес.

  • Санкт-Петербург г, Лыжный пер, д. 2

Основные характеристики

  • Этаж 1 этаж 25-этажного дома
  • Общая площадь 18.73 м²
  • Назначение помещения торговое помещение

Дополнительная информация

  • Предоплата 100 %
  • Источник напрямую
  • Залог да
  • Ремонт да
  • Наличие интернета да
  • Вид из окон на улицу
  • Высота потолков, м 4.02

Инфраструктура

Описание

Предлагаем в аренду помещение стрит-ритейл площадью 18.73 м2, в прямую аренду, с предоплатой за 1 месяц. Минимальный срок аренды 11 мес. Помещение располагается в 25-этажном жилом доме в 10 мин. пешком от м. Беговая в Приморском районе Санкт-Петербурга. Помещение располагается на 1 этаже здания. Помещение свободно после 1 июня 2026 года. Возможное назначение помещения - торговое, высота потолков 4.02 м, внутри типовой ремонт, на полу плитка, тип окон - витринные, окна выходят на улицу. Здание построено в 2012 году. Внутри местное кондиционирование, вентиляция - естественная, центральное отопление, гидрантная система пожаротушения. Доступ в здание свободный. Вход в помещение - общий с улицы. Инфраструктура: аптека, супермаркет, товары из Японии, школа. [#8128409#]

Актуальные предложения

46 825 руб./мес. Помещение 19 м2, 1/25 этаж, Лыжный, д. 2
Позвоните мне