Все строящиеся дома и готовые новостройки
Санкт-Петербурга и Ленобласти
Санкт-Петербург и ЛО

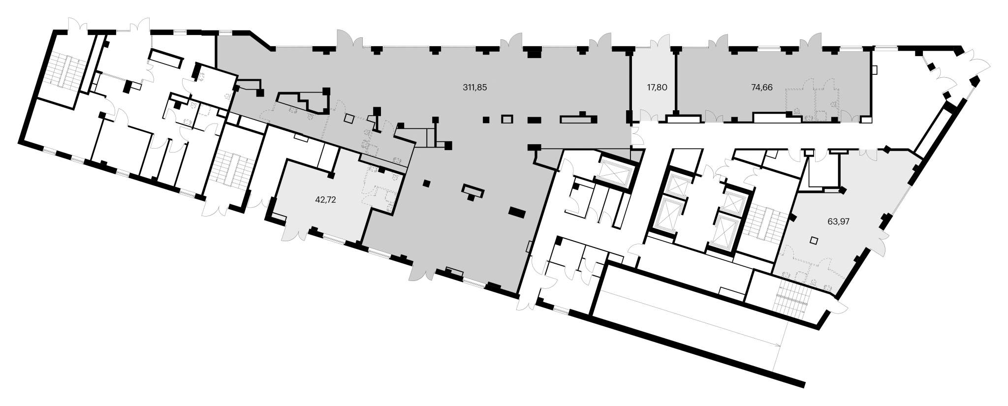
Помещение 74 м2, 1/15 этаж,
Энергетиков проспект, д.6

280 583 руб./мес.

  • Санкт-Петербург, Энергетиков проспект, д.6

Основные характеристики

  • Этаж 1 этаж 15-этажного дома
  • Общая площадь 74 м²
  • Назначение помещения помещение свободного назначения

Дополнительная информация

  • Источник напрямую
  • Наличие интернета да
  • Высота потолков, м 4

Инфраструктура

Описание

В аренду сдается коммерческое помещение в строящемся корпусе проекта Вольта. Проект является уникальным и включает в себя 430 апартаментов с готовой дизайнерской отделкой, что обеспечит высокий трафик при сдаче дома. Помещение находится в развитой локации бизнес-центров и жилья Комфорт класса. Выход на набережную реки Охта обеспечит еще большую проходимость жителей и гостей района Особенности помещения: Открытая планировка Витринное остекление Удобный вход на уровне земли Высота потолков - 3,93 м Эл. мощность - 200 ВТ/м2 Объект расположен по адресу: Санкт-Петербург, пр. Энергетиков, дом 6, корпус 2, литера А. Общая площадь - 74,66 м. Арендная ставка - 45 500,00 руб/м2/год БЕЗ учета КП и ЭР Требуемый функционал - продуктовый ретейл Получение РВЭ - 30.09.2025 г. [#8062614#]

Актуальные предложения

280 583 руб./мес. Помещение 74 м2, 1/15 этаж, Энергетиков проспект, д.6
Позвоните мне