Все строящиеся дома и готовые новостройки
Санкт-Петербурга и Ленобласти
Санкт-Петербург и ЛО

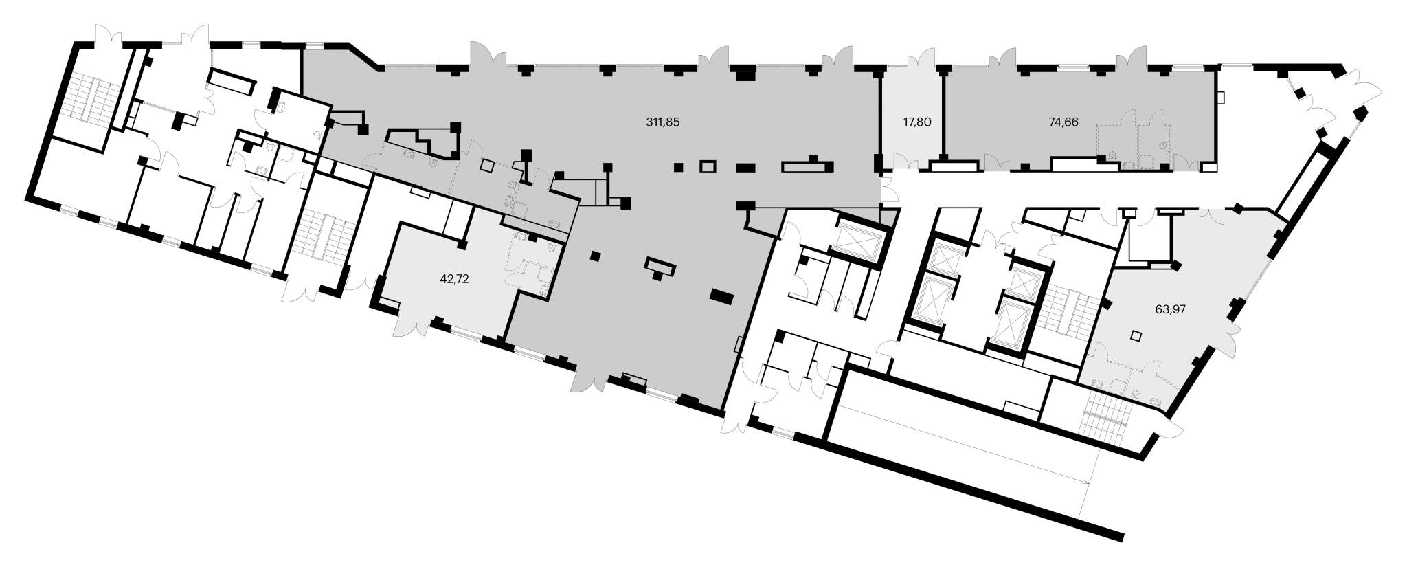
Помещение 311 м2, 1/15 этаж,
Энергетиков проспект, д.6

958 917 руб./мес.

  • Санкт-Петербург, Энергетиков проспект, д.6

Основные характеристики

  • Этаж 1 этаж 15-этажного дома
  • Общая площадь 311 м²
  • Назначение помещения помещение свободного назначения

Дополнительная информация

  • Источник напрямую
  • Наличие интернета да
  • Высота потолков, м 4

Инфраструктура

Описание

В аренду сдается коммерческое помещение в строящемся корпусе проекта Вольта. Проект является уникальным и включает в себя 430 апартаментов с готовой дизайнерской отделкой, что обеспечит высокий трафик при сдаче дома. Помещение находится в развитой локации бизнес-центров и жилья Комфорт класса. Выход на набережную реки Охта обеспечит еще большую проходимость жителей и гостей района Особенности помещения: Планировка под ресторан Витринное остекление Удобный вход на уровне земли Высота потолков - 3,93 м Эл. мощность - 119,35 кВт Кондиционирование - 3 блока. Объект расположен по адресу: Санкт-Петербург, пр. Энергетиков, дом 6, корпус 2, литера А. Общая площадь - 311,85 м. Арендная ставка - 37 000,00 руб/м2/год БЕЗ учета КП и ЭР Требуемый функционал - ресторан Получение РВЭ - 30.09.2025 г. [#8062609#]

Актуальные предложения

958 917 руб./мес. Помещение 311 м2, 1/15 этаж, Энергетиков проспект, д.6
Позвоните мне