Все строящиеся дома и готовые новостройки
Санкт-Петербурга и Ленобласти
Санкт-Петербург и ЛО

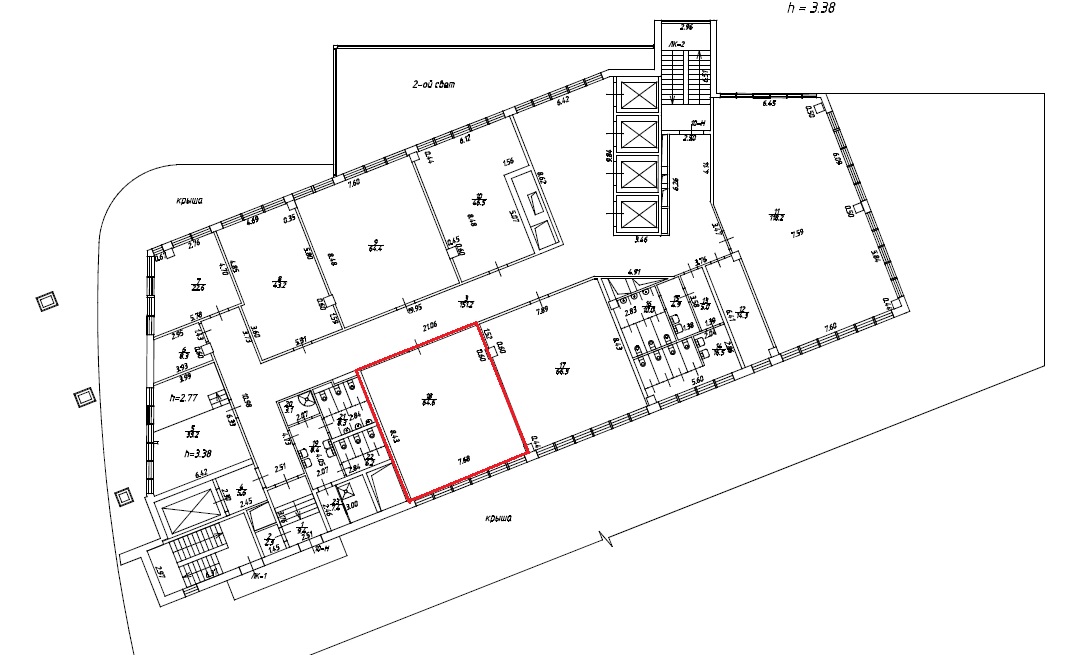
Помещение 65 м2, 2/14 этаж,
Львовская, д. 27

142 120 руб./мес.

  • Санкт-Петербург г, Львовская ул, д. 27

Основные характеристики

  • Этаж 2 этаж 14-этажного дома
  • Общая площадь 64.6 м²
  • Назначение помещения офисное помещение

Дополнительная информация

  • Предоплата 100 %
  • Источник напрямую
  • Залог да
  • Ремонт да
  • Наличие интернета да
  • Вид из окон во двор
  • Покрытие пола ковролин
  • Наличие лифта да
  • Высота потолков, м 3.37

Инфраструктура

Описание

Помещение под офис площадью 64.6 кв.м, на 2 этаже 14-этажного бизнес-центра класса A в 15 мин. транспортом от м.Новочеркасская в Красногвардейском районе Санкт-Петербурга. Высота потолков: 3.37 м. Офис предоставляется в прямую аренду, срок аренды - любой, с предоплатой за 1 месяц. Минимальный срок аренды 11 мес. Офис со стандартной отделкой, внутри открытая планировка, на полу ковролин, тип окон - витринные, окна выходят во двор. Офис расположен в центре "Office L27 (Офис Л27)", общая площадь здания 15808 м2, здание построено в 2016 году, здание полностью функционирует, доступ в здание осуществляется по пропускам, доступ в здание круглосуточный. Вход в офис - общий с улицы. В здании есть лифт, охрана, в офисе центральное кондиционирование, вентиляция офиса - приточная, центральное отопление, спринклерная система пожаротушения. [#7852934#]

Актуальные предложения

142 120 руб./мес. Помещение 65 м2, 2/14 этаж, Львовская, д. 27
Позвоните мне