Все строящиеся дома и готовые новостройки
Санкт-Петербурга и Ленобласти
Санкт-Петербург и ЛО

Помещение 79 м2,
Савушкина, д. 17

110 000 руб./мес.

  • Санкт-Петербург г, Савушкина ул, д. 17

Основные характеристики

  • Общая площадь 79.2 м²
  • Назначение помещения коммерческая

Дополнительная информация

  • Источник через агента
  • Залог да
  • Наличие парковки да

Инфраструктура

Описание

1704771 Аренда помещения под торговлю, общепит. Предлагается в аренду помещение в Приморском районе Санкт-Петербурга на первой линии улицы Савушкина, дом 17, в 5-ти минутах ходьбы от метро Черная речка.

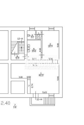
цокольный этаж, 1 линия улицы Савушкина
Площадь 79,2 кв.м.
Два отдельных входа: один вход с первой линии улицы Савушкина, один вход со двора через парадную
Два окна
Электрическая мощность 12 кВт (возможно увеличение)
Высота потолков 2,4 м
Вытяжка-свеча
Возможность размещения рекламных вывесок на фасаде на улице Савушкина
Удобная парковка автомобилей вдоль здания

Помещение всегда использовалось под общепит, готовы рассмотреть арендатора с другим видом деятельности. Оборудовано под общепит, укомплектовано мебелью (барная стойка, столы, стулья из массива дерева), два телевизора, музыкальная акустическая система, кондиционер. Кухня: вытяжка свеча, встроенный дровяной мангал, плита индукция, холодильники (два - среднетемпературных, один - глубокая заморозка, два - барные для напитков), минипечь, микроволновая печь, разделочные столы, мойка, кулер (горячая/холодная вода), посуда для приготовления и подачи.


Хороший пешеходный и автомобильный трафики по улице Савушкина, рядом расположены остановки общественного транспорта и пешеходные переходы. Хорошее торговое соседство: Магнит, РосАл, ресторан китайской кухни «Ши кэ», КофеБон, Стоматологии, салоны красоты, Vinissimo, «Красное и Белое» и другие

Стоимость аренды на первый год 110000 рублей + КУ
Предоставим арендные каникулы

Для получения дополнительной информации и организации просмотра звоните!

Актуальные предложения

110 000 руб./мес. Помещение 79 м2, Савушкина, д. 17
Позвоните мне