Все строящиеся дома и готовые новостройки
Санкт-Петербурга и Ленобласти
Санкт-Петербург и ЛО

Помещение 2500 м2, 1/1 этаж,
Ново-Никитинская ул, 3

2 475 000 руб./мес.

  • Санкт-Петербург, Ново-Никитинская ул, 3

Основные характеристики

  • Этаж 1 этаж 1-этажного дома
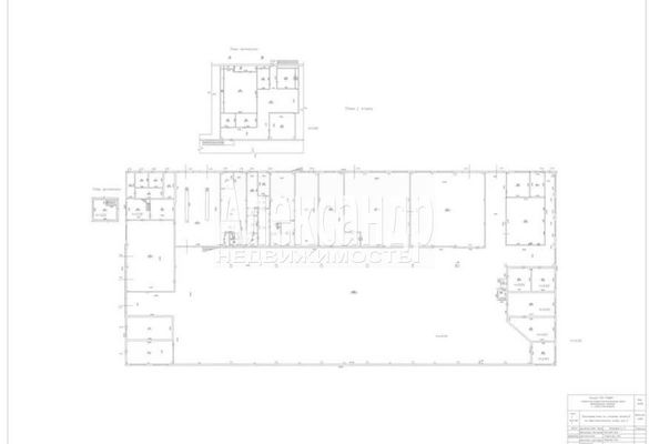
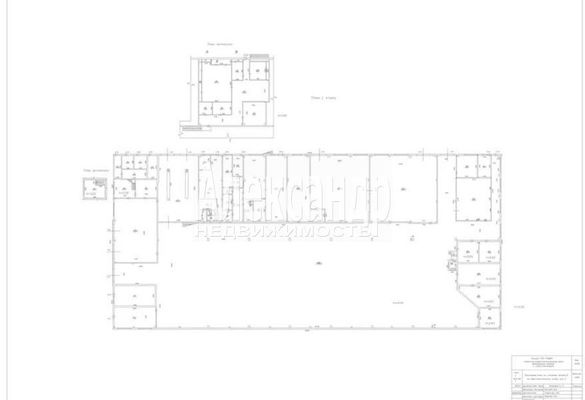
  • Общая площадь 2500 м²
  • Назначение помещения коммерческая

Дополнительная информация

  • Источник через агента

Инфраструктура

Описание

1703969 Предлагаем в арeнду помещение под cклад или производство расположенный по адресу: Санкт-Петербург, Приморский район, промышленная зона Коломяги, ул. Ново-Никитинская, 3, точка на карте Авито стоит правильно (исторический адрес: ул. Долгоозёрная, 30) (пересечение ул. Вербная / ул. Маршала Новикова/Долгоозёрная улица)

Предлагаем в арeнду помещение под cклад или производство расположенный по адресу: Санкт-Петербург, Приморский район, промышленная зона Коломяги, ул. Ново-Никитинская, 3, точка на карте Авито стоит правильно (исторический адрес: ул. Долгоозёрная, 30) (пересечение ул. Вербная / ул. Маршала Новикова/Долгоозёрная улица)
Кадастровый номер участка: 78:34:0412003:1165
Кадастровый номер здания лит. Б: 78:34:0412003:1008
Выезд на КАД 10 км 10-15 мин на машине, Выборгское шоссе 4,5 км 10 мин, ул. Парашютная 0,5 км.

Общая площадь 2500 м
с возможностью деления
Электрическая мощность 100 кВт (с возможностью увеличения)
Высота потолков до фермы 11 м, до кровли 14 м
бетонный, обеспыленный
Кранбалка 2.5 т.
Водоснабжение и канализация центральная
Отопление центральное
система пожаротушения есть (договор с водоканалом, гидротушение 10л/с)
система вентиляции есть (старая).
Два въезда/выезда через общие КПП с Долгоозёрной улицы и Автобусного переулка.
Территория асфальтированная, закрытая с круглосуточным доступом, шлагбаум, парковка, разворот и подход больше груза к воротам.
Территориальная зона объектов инженерной и транспортной инфраструктур, коммунальных объектов, складских и производственных объектов IV и V классов опасности.
При необходимости возможна дополнительная аренда земельного участка, складских, производственных и офисных площадей.

Ставка 990 руб/ми(УСН) + КУ

Актуальные предложения

2 475 000 руб./мес. Помещение 2500 м2, 1/1 этаж, Ново-Никитинская ул, 3
Позвоните мне