Все строящиеся дома и готовые новостройки
Санкт-Петербурга и Ленобласти
Санкт-Петербург и ЛО

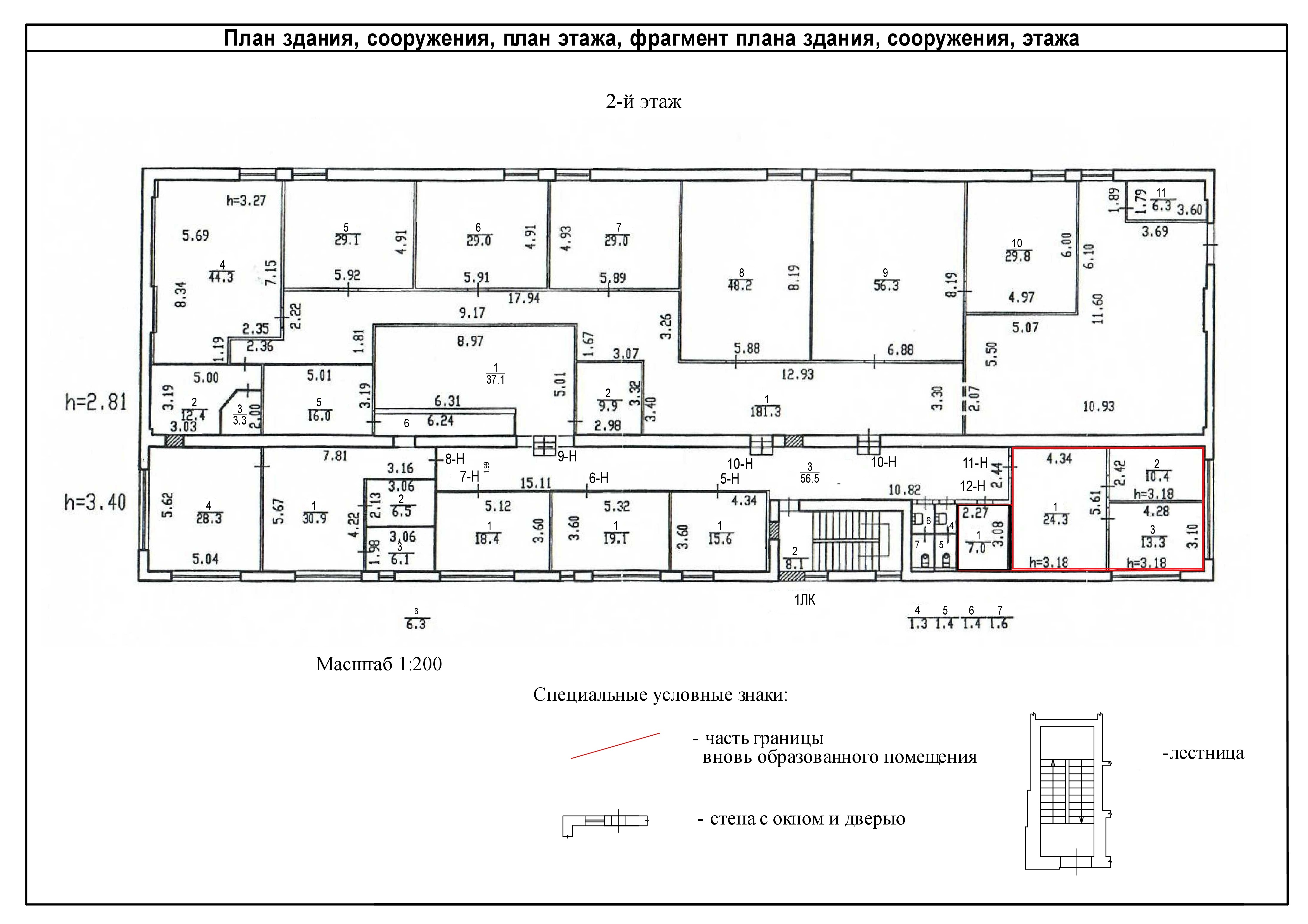
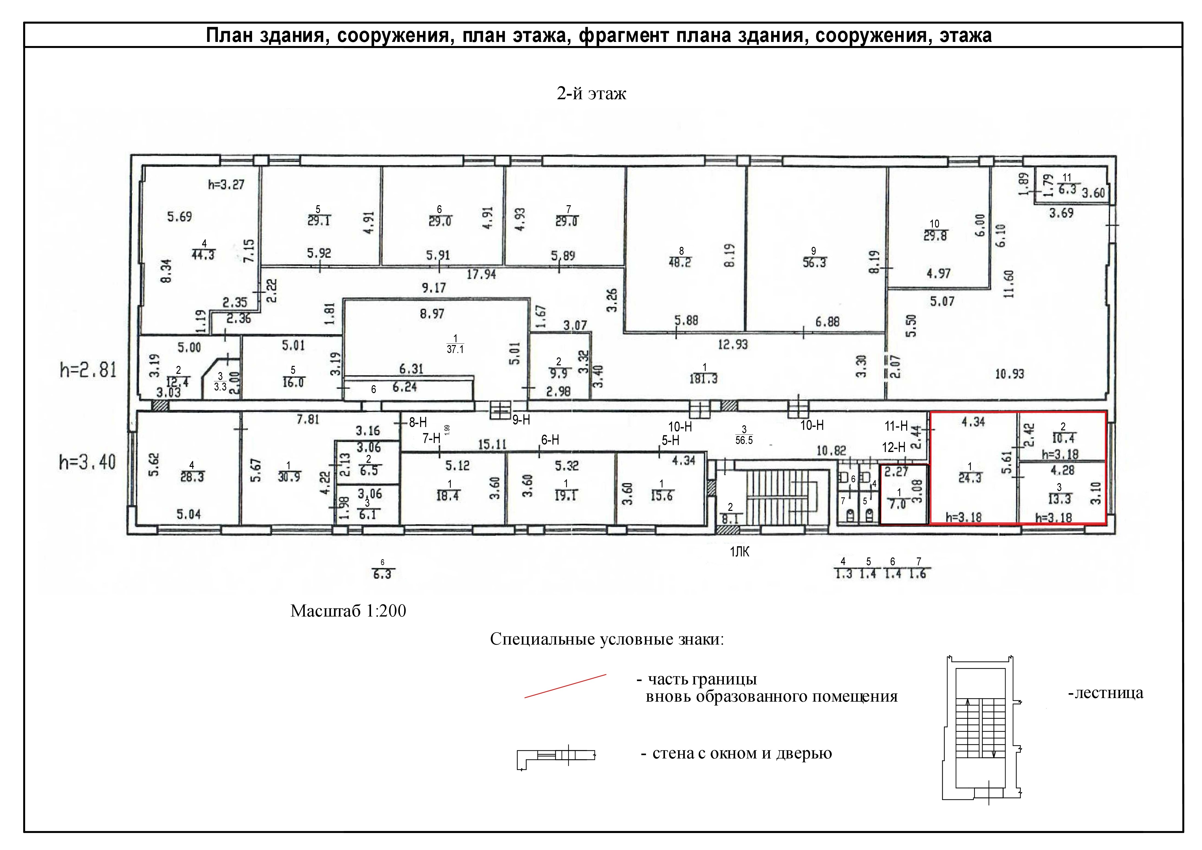
Помещение 48 м2, 2/3 этаж,
Южное, д. 37к1 литера а

40 800 руб./мес.

  • Санкт-Петербург г, Южное ш, д. 37к1 литера а

Основные характеристики

  • Этаж 2 этаж 3-этажного дома
  • Общая площадь 48 м²
  • Назначение помещения офисное помещение

Дополнительная информация

  • Предоплата 100 %
  • Источник через агента
  • Залог да
  • Ремонт да
  • Наличие интернета да
  • Вид из окон на улицу
  • Покрытие пола линолеум
  • Высота потолков, м 3.3

Инфраструктура

Описание

Офис (территория лит В) без комиссии от собственника 48 м2, состоит из трех кабинетов, расположенные на 2 этаже офисного центра. Кабинетная система. Хороший ремонт (стеклопакеты, подвесной потолок, обои под покраску). Высота потолка 3,3 м. Телефония, интернет. На территории расположены кафе и магазины. Удобная транспортная доступность. Отличный подъезд, рядом пассажирская станция "Сортировочная", остановки общественного транспорта, близость к КАД. Стоимость 40 800 рублей, входят коммунальные услуги (отопление, свет, вода), телефон и интернет оплачиваются отдельно. Возможность аренды дополнительных площадей (склад, открытая площадка, торговая площадь). Есть возможность предоставления юридического адреса. [#6109296#]

Актуальные предложения

40 800 руб./мес. Помещение 48 м2, 2/3 этаж, Южное, д. 37к1 литера а
Позвоните мне