Все строящиеся дома и готовые новостройки
Санкт-Петербурга и Ленобласти
Санкт-Петербург и ЛО

Дом 200 м2, 12 сот, Массив Мичуринское

25 000 руб./день

  • Ленинградская обл, Приозерский р-н, Массив Мичуринское дп

Основные характеристики

  • Срок сдачи 2024 г.
  • Комнат 4
  • Общая площадь 200 м²

Дополнительная информация

  • Кол-во этажей 2
  • Источник через агента
  • ФЗ-214 нет
  • Ремонт да
  • Наличие интернета да
  • Наличие мебели да
  • Наличие телевизора да
  • Наличие стиральной машины да
  • Наличие холодильника да
  • Наличие охраны / сигнализации да

Инфраструктура

Описание

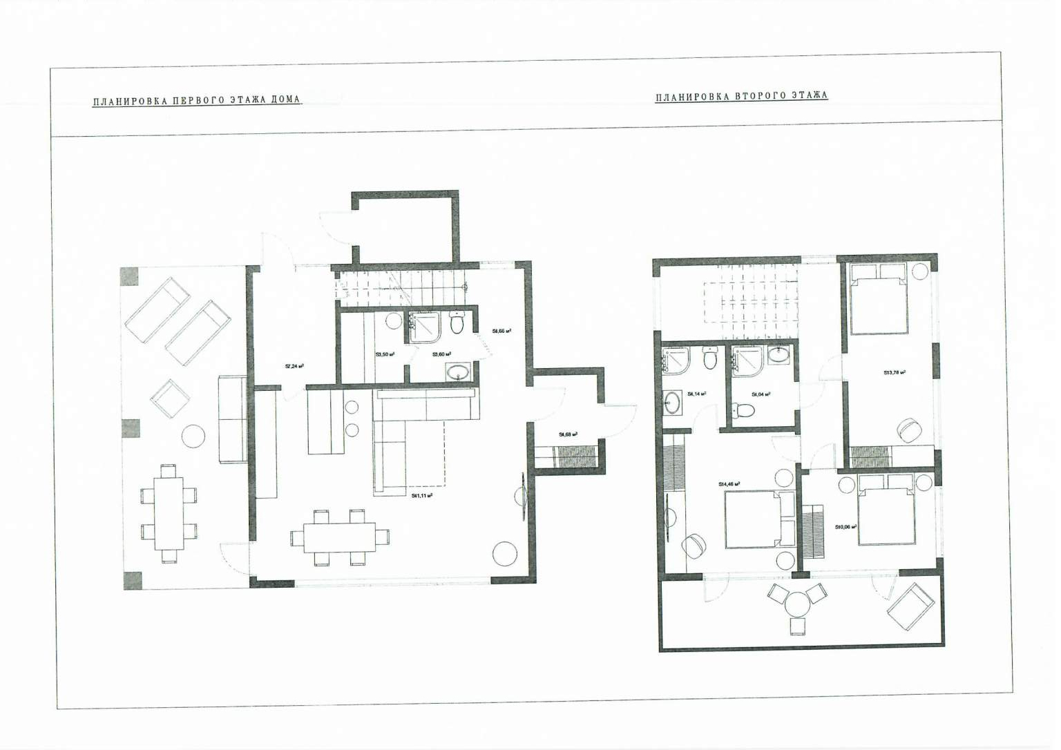
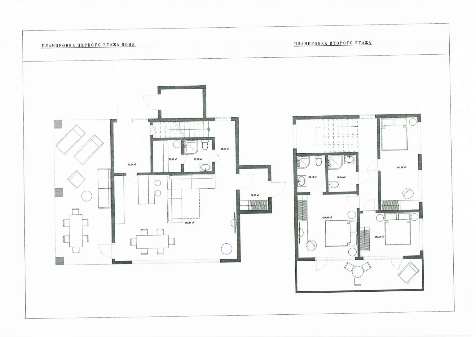
Сдается в аренду новый (еще никто не проживал) 2-этажный дом, площадью 200 кв.м. на участке 12 соток в КП на 20 домов, у озера. КП находится в сосновом лесу, у озера, в тихом месте с прекрасной экологией. Территория охраняется. В 4 км. расположен пос. Мичуринское, в 15 км. - п. Коробицыно, Курорт «Игора» - в 30 км. У нас можно пройтись по экотропам, посидеть на берегу озера или нарядить елочку на собственном участке, приготовить шашлык в зоне барбекю у дома, также можно воспользоваться нашей услугой по доставке продуктов из ближайших маркетов. Дом имеет 2 входа, оборудован электрической сауной, 3 спальнями, просторной кухней-гостинной, открытой террасой, большим балконом на втором этаже и зоной барбекю, полностью укомплектован мебелью, постельными и косметическими принадлежностями, бытовой техникой, всеми необходимыми бытовыми приборами, такими как: встроенные варочная панель, посудомоечная машина, духовой шкаф, холодильник, стиральная машина, микроволновая печь, электрический чайник, есть вся необходимая посуда для приготовления и принятия пищи, обеденный стол, плазменный телевизор, раскладной диван , утюг, гладильная доска, сушилка д/одежды, 3 фена, 3 комплекта постельных принадлежностей на каждую кровать, комплекты полотенец , кондиционеры, WI-FI, зона барбекю (Мангал, Гриль, Казан)– входят в стоимость, комплект садовой мебели на террасе и балконе, сауна. Ha 1 этаже дома располагается гардеробная, просторная кухня-гоcтиная с раскладным диваном на 3 доп. спальных места, сауна и с/у. На 2 этаже расположены 3 спальни с одной 2-спальной кроватью в каждой спальне, шкафами и туалетными столиками. Одна из спален оборудована личным с/у. Также на 2 этаже есть один общий с/у. Из гостиной можно выйти на открытую террасу и зону барбекю, где есть мангал, гриль, казан. Главное преимущество дома - его сауна с потолком из сибирского можжевельника, который оказывает благоприятное действие на нервную и дыхательную системы. Дополнительные комплекты постельного белья, полотенец или замена грязного белья, а также вывоз мусора оплачивается отдельно Зона барбекю, сауна и парковка предоставляются бесплатно. Дом рассчитан на 6 человек, проживание на доп. местах (раскладной диван, раскладушка, до 4 человек) оплачивается отдельно. При заезде берется залог за сохранность имущества. В размере 15500 рублей. ВАЖНО! Если вы оставляете коттедж в грязном состоянии (немытая посуда, мусор, грязь, мебель не на месте), с залога удерживается стоимость за уборку коттеджа, если обнаруживается порча имущества с залога также удерживается стоимость испорченной вещи. Время заезда начинается с 14:00 МСК Время выезда – до 12:00 МСК По запросу может быть согласовано другое время заезда/выезда Дом доступен к аренде с 01 декабря Для расчета стоимости аренды дома в Новогодние каникулы, выходные/праздничные дни рассчитывается с применением коэфициента: 2 и 1,2 соответственно. В объявлении указана базовая стоимость в будний день. [#6507838#]

Актуальные предложения

25 000 руб./день Дом 200 м2, 12 сот, Массив Мичуринское
Позвоните мне