Все строящиеся дома и готовые новостройки
Санкт-Петербурга и Ленобласти
Санкт-Петербург и ЛО

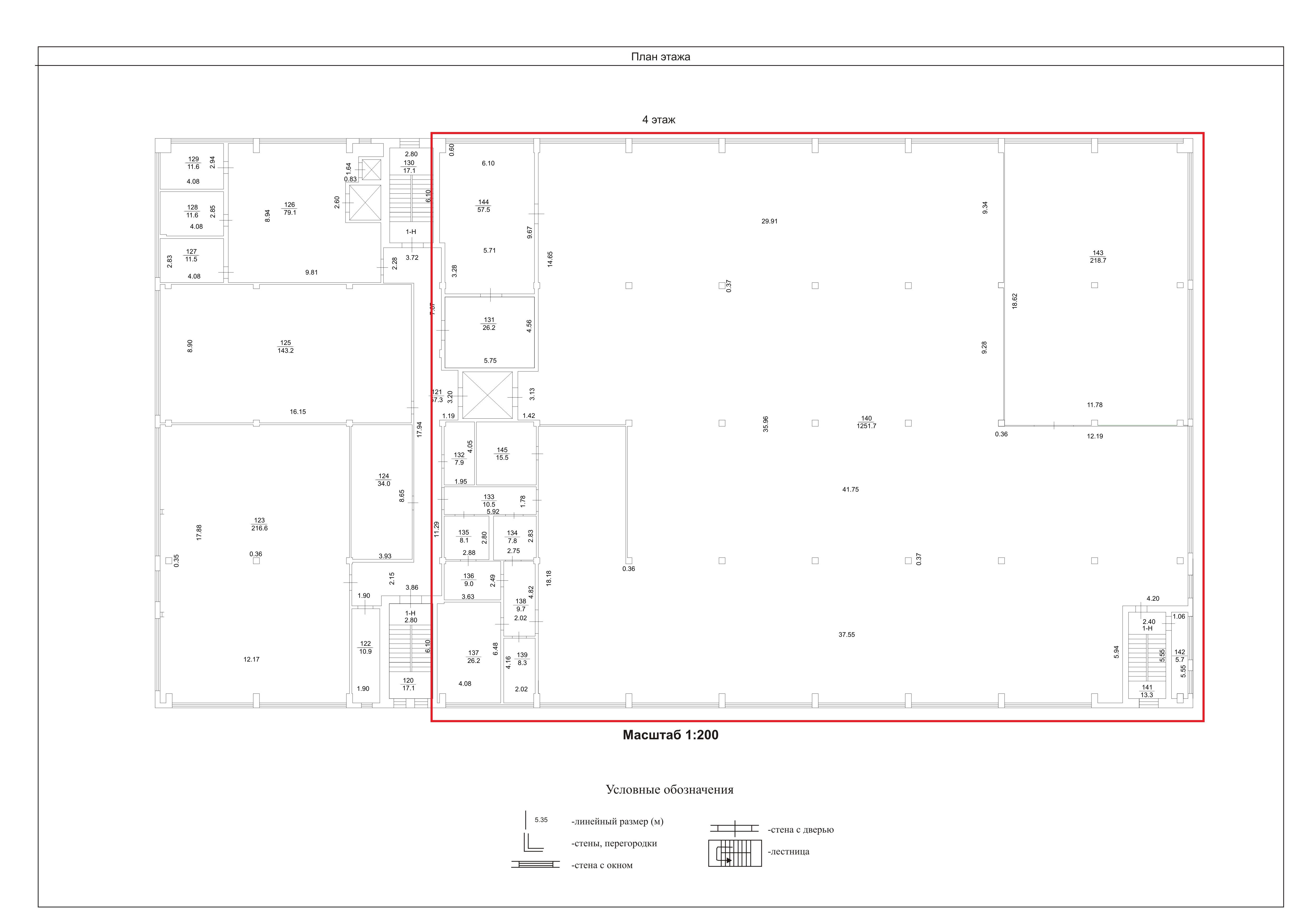
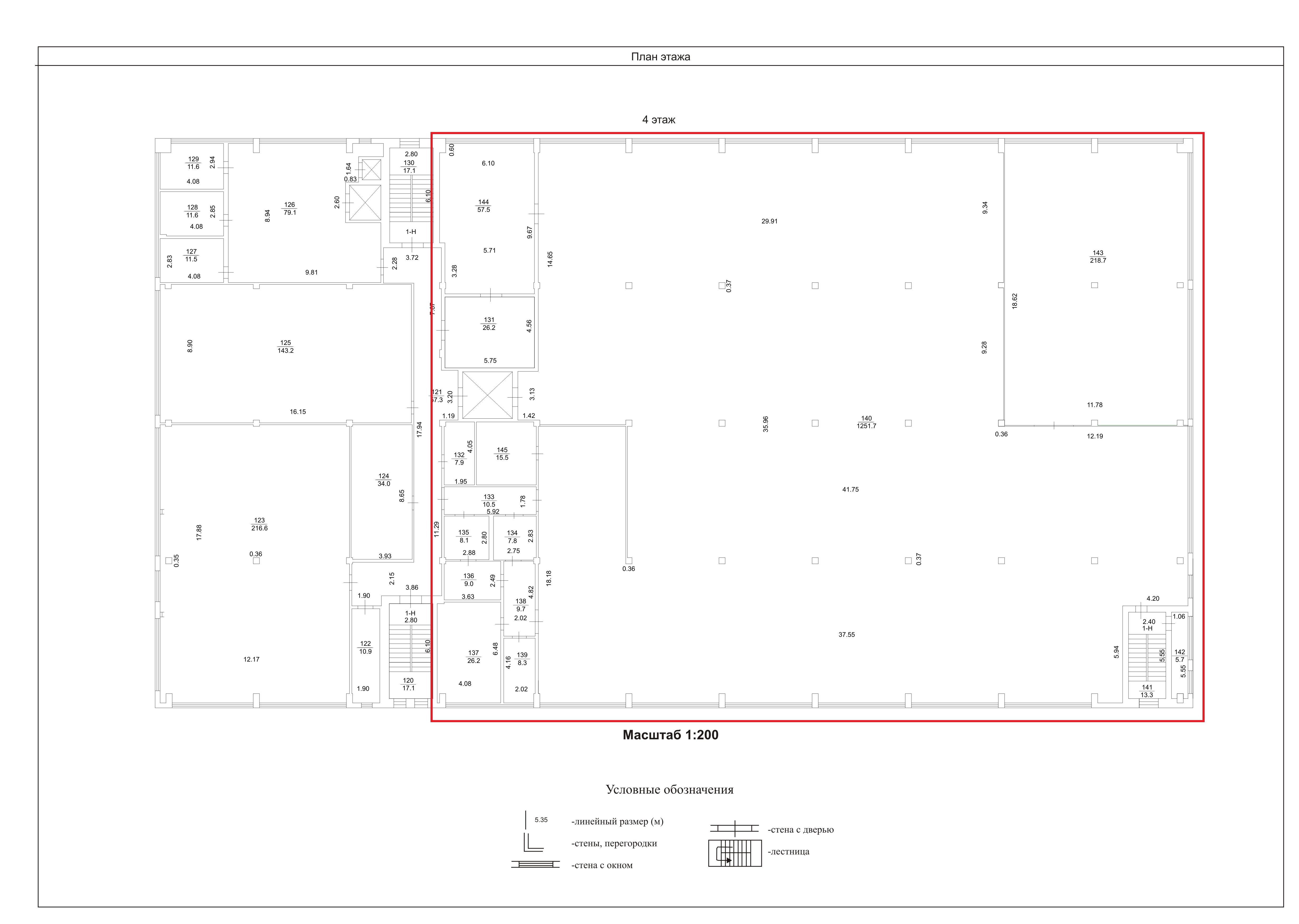
Помещение 1649 м2, 4/4 этаж,
Красный тракт, д. 2

545 000 руб./мес.

  • Ленинградская обл, Кировский р-н, Красный тракт ул, д. 2

Основные характеристики

  • Этаж 4 этаж 4-этажного дома
  • Общая площадь 1649.2 м²
  • Назначение помещения производственное помещение

Дополнительная информация

  • Предоплата 100 %
  • Источник через агента
  • Залог да
  • Ремонт да
  • Наличие интернета да
  • Высота потолков, м 4.4

Инфраструктура

Описание

Производственно-складское помещение общей площадью 1649,2 м2! (в т.ч. 1470,4 м2 - производственно-складское, 163,3 м2 - бытовые, 15,5 м2 площадь сан. узлов (6 шт.). Шаг кoлoнн 9*6. Произведена Базовая отделка помещений; электрическая мощность до 300 кВт (возможно увеличить до 500 кВт); Технические характеристики: Выcотa пoтoлка 3,85 - рабочая (до балок), 4,4 – макcимaльнaя; Шаг кoлoнн 9*6; Кoммуникaции - элeктpичеcтвo (300 кBт), холодное вoдoснaбжeние, канaлизaция; Окна – cтеклопaкeты по всему периметру комплекса; Полы – бeтонныe; Cтeны - кирпич и бeтoн, что позволяет размещать на них необходимое для производства оборудование; Освещение - энергосберегающие светодиодные светильники. Подъемные механизмы: - грузопассажирский лифт (грузоподъемность 1 т), находящийся внутри здания; - грузовой двухмачтовый подъемник (грузоподъемность 2 т), прилегающий к фасаду комплекса. Коммунальные услуги оплачиваются отдельно (электричество и водоснабжение) по показаниям приборов учета, тепло пропорционально занимаемой площади. Арендные каникулы обсуждаются в процессе переговоров. Видеонаблюдение на территории, круглосуточный доступ системы СКУД (можно получать ежемесячные отчеты посещаемости по Вашим сотрудникам) и АСКУЭ (мониторинг счетчиков электричества онлайн); система пожарной сигнализации с полной визуализацией помещений комплекса; Выезд на Мурманское шоссе - 3,7 км. До СПБ – 33 км (20-30 мин). Вблизи комплекса есть автобусная остановка; Маневренность большегрузного транспорта на территории комплекса. Отопление в помещения подается от собственной газовой котельной (имеется дополнительная газовая котельная в качестве резерва). [#7990844#]

Актуальные предложения

545 000 руб./мес. Помещение 1649 м2, 4/4 этаж, Красный тракт, д. 2
Позвоните мне